รับสร้าง อพาร์ทเม้นท์ สูง 4 ชั้น
รับเหมาก่อสร้าง อพาร์ทเม้นท์ สูง 4 ชั้น
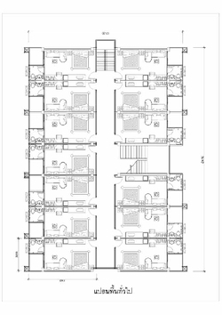
ขนาดพื้นที่ 27.50 ตร.ม/ห้อง พื้นที่ใช้สอย 1,666.00 ตร.ม ดาดฟ้า 343.00 ตร.ม
รวมพื้นที่ใค่าช้สอย 2,009.00 ตร.ม ค่าก่อสร้าง .-บาท
สนใจติดต่อ 081-9117032 คุณภูริช
สามารถปรับเพิ่ม-ลด ตามความต้องการหรืองบประมาณได้
รับเหมาก่อสร้างบ้าน อาคารทุกประเภทตามแบบที่ท่านมีอยู่แล้ว
หรือออกให้ใหม่ฟรี
![]() | ![]() |
| ราคา: | ตามงวดงานก่อสร้าง | ต้องการ: | รับจ้าง/บริการ | ||
| ติดต่อ: | ภููริช พรมลาย | อีเมล์: | |||
| สภาพ: | ใหม่ | จังหวัด: | กรุงเทพมหานคร | ||
| โทรศัพย์: | ลาดพร้าวจตุจักรกทม. | IP Address: | 61.90.31.69 | ||
| คำค้น: | แบบอพาร์ทเม้นท์4ชั้น | แบบอาพาร์ทเม้น 4ชั้น | แบบ อ พาร์ ท เม้น ท์ 4 ชั้น | แบบอพาร์ทเม้นท์ 4 ชั้น | แบบ อพาร์ทเม้นท์ 4 ชั้น | อพาร์ทเม้นท์ 4 ชั้น | รับสร้างอพาร์ทเม้นท์ | 20101223bowapartment | อพาร์ทเม้นท์4ชั้น | อพาร์ทเม้นท์ | | ||||


