ขายดาวน์ขาดทุน คอนโดศุภาลัย ปาร์ค เอกมัย-พัฒนาการ( เจ้าของขายเอง)
Sub1396
ขายดาวน์ขาดทุน คอนโดศุภาลัย ปาร์ค เอกมัย-พัฒนาการ( เจ้าของขายเอง)
ซื้อตั้งแต่เป็นราคาพรีเซล ถูกกว่าซื้อกับโครงการ ณ ปัจจุบัน
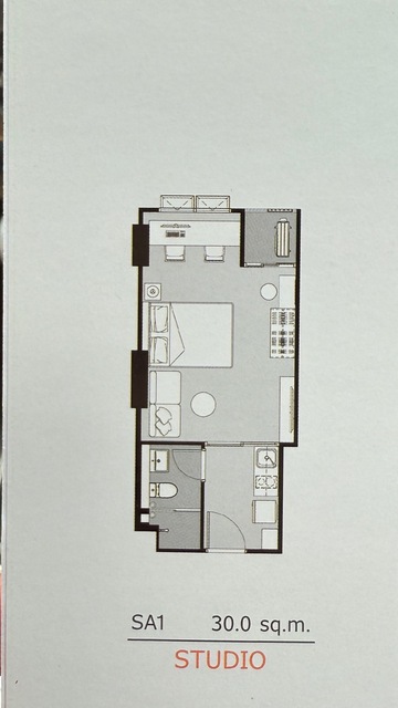
ตึก A ชั้น 10 ตำแหน่งห้อง 1032
ขนาด 30 ตรม. ห้องสตูดิโอ
กำหนดโอนกรรมสิทธิ์ 15 กย 69
ใกล้ MRT เพชรบุรี และ ใกล้ ARL รามคำแหง
ผ่อนดาวน์ 30 งวด งวดละ 5,900 บาทผ่อนไปแล้ว 24 งวด เป็นเงิน 141,600 บาท คงเหลือผ่อนอีกแค่ 6 งวด
เงินทำสัญญา 136,500 บาท
เงินจอง 10,000 บาท
ชำระรวมให้โครงการไป 288,100 บาท
ขอขายดาวน์ขาดทุน ขายแค่ 190,000 บาท
ราคาห้อง 2,283,000บาท
วันโอนกรรมสิทธิ์ 1,959,500 บาท
ส่วนลด ณ วันโอน 153,650 บาท
สนใจติดต่อ 089-1746993
ID Line : bow.0911
![]() |
| ยี่ห้อ: | ศุภาลัย ปาร์ค เอกมัย-พัฒนาการ | รุ่น: | ศุภาลัย ปาร์ค เอกมัย-พัฒนาการ | ||
| ราคา: | 190,000 บาท | ต้องการ: | ขาย | ||
| ติดต่อ: | บลู เฮ้าส์ ออนไลน์มาร์เก็ตติ้ง | อีเมล์: | |||
| สภาพ: | มือสอง (สภาพ 100%) | จังหวัด: | กรุงเทพมหานคร | ||
| โทรศัพย์: | 0941155012 | IP Address: | 127.0.0.1 | ||
| มือถือ: | 0941155012 | เลขบัตรประชาชน: | 2211178242XXX | ||
| ที่อยู่: | ศุภาลัย ปาร์ค เอกมัย-พัฒนาการ | ||||
| คำค้น: | ศุภาลัย ปาร์ค เอกมัยพัฒนาการ | | ||||

